Planning and listed building consent has been achieved for the conversion of two Grade II* Listed houses dating from the 1720s back into townhouses. The buildings, located on Great James Street in Mayfair, London, had been combined in the early C20 into an...
Read more.
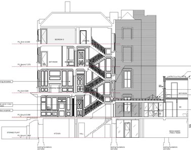
Planning and listed building consent has been achieved for the conversion of two Grade II* Listed houses dating from the 1720s back into townhouses. The buildings, located on Great James Street in Mayfair, London, had been combined in the early C20 into an office.
Read less.