Planning Permission
Here are some articles concerning the MBA architects in London, Wimbledon on the topic of Planning Permission
UCS Planning Success
Planning permission has been granted at appeal for the construction of a new sports facility at University College School, London. Construction of the new facility will begin in 2017. The work involves improvements to the landscape and pitches, and a new pavilion straddling a public footpath through the site.
Read less.Chelsea Arts Club Planning and Listed Building Consent
Chelsea Arts Club
Read more.Planning and Listed Building Consent has been granted for alterations and a new events studio at the Chelsea Arts Club. A thorough conservation-led review of this led to a 21st century design.
Read less.Planning Application for Holy Trinity, Clapham – London
A planning application has been submitted for a new extension to Holy Trinity Clapham, a Grade 2* Listed Building in a Conservation Area in the London Borough of Lambeth.
The extension to the east of the church will provide much needed flexible space for the congregation and wider community.
A quiet and elegantly articulated stone building, the new extension sits beneath Beresford Pite’s east elevation and faces towards the town centre.
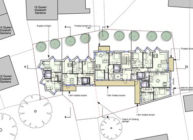
Read less.Planning Granted for 21 New Flats in Morden, London
Planning permission was granted on two previously developed sites in Morden. Two separate but related planning applications, one to remove a garage from a backland site, the other to relocate it next to the London Road, the old Roman Road linking London to Chichester. On each site to provide new, high quality housing, exceeding London Plan requirements, all double or treble aspect flats, the design arrived at after extensive consultation.
Read less.Archery Road Approved at Planning, Hastings
The development of 121 homes at the former Hastings College site at Archery Road St Leonard’s was unanimously approved by the planning committee of Hastings Council on 6 November. The applicants were commended by the committee not only for the quality of the design, but also for the quality of community consultation, working with objectors over a period of six months to achieve a design which they now support. The development will provide new green space and will ‘enhance the character of the conservation area’. Construction begins early 2014.
Read less.Archery Road Exhibition Hastings
The planning scheme for Archery Road, Hastings was exhibited at the Assembly Rooms, St Leonard’s on Sea, on Saturday 20 July 2013. A planning application will now be submitted for the development of 121 homes in the uplands of Burton St Leonard’s, an early planned seaside resort by James Burton and his son Decimus.
Read less.Wimbledon Broadway Scheme gets a green light from the Design Review Panel
Broadway Baby
Read more.MBA’s mixed use development proposals for 247 The Broadway Wimbledon have been submitted for planning. The proposal is for offices/health facility, nine minimum-double aspect, generously planned 2 bedroom flats, and a new ungated courtyard to complement the gardens of Holy Trinity church opposite. The design has been guided throughout by engineering supported by evidence. Building physiscists Max Fordham have worked closely with MBA from concept design onwards to ensure a truly sustainable design, naturally lit, in which the architectural expression expresses delight in its function.
Read less.King’s Pavilion Planning Consent
The new pavilion for King’s College School at West Barnes Lane has achieved planning consent.
Read less.Rhodes Building Proposals Achieve Listed Building Consent
The proposals for the Rhodes Building heritage/conservation project at Oriel College, Oxford have achieved Listed Building Consent. Alterations to this Grade II* listed building include the addition of a new floor of student accommodation, within a folded copper roof.
Read less.Eco-housing in Oxford
After a conservation assessment by MBA on behalf of Oriel College, Oxford, a proposal for new eco-housing scheme is submitted for planning to Oxford City Council.
The housing will be used by Fellows and graduate students of Oriel College, Oxford and is to be constructed on the site of a medieval leper colony in the Bartlemas Conservation Area which has been owned by the college since 1329.
Read less.